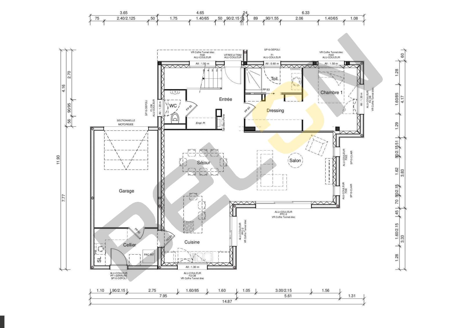
Plan de maison à étage - 122m² - 4 chambres

Contactez-nous

VOTRE SELECTION

Référence : 21256

* Tarif hors réseaux, accès, adaptation au sol et options

Plans

Pour aller plus loin

Vous souhaitez des informations sur ce modèle de maison ?

Être rappelé

Partager sur les réseaux sociaux