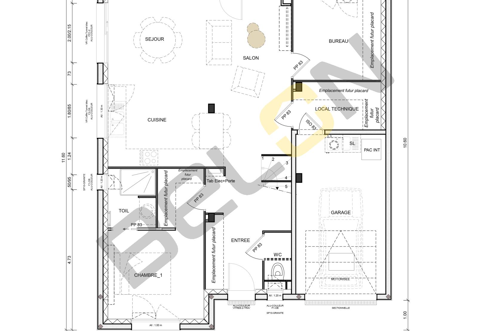
Plan de maison à étage - 116.84m² - 3 chambres

Contactez-nous

VOTRE SELECTION

Référence : 25516

* Tarif hors réseaux, accès, adaptation au sol et options

Plans

Pour aller plus loin

Vous souhaitez des informations sur ce modèle de maison ?

Être rappelé

Partager sur les réseaux sociaux